
立井防爆门厂家的生产流程 立井防爆井盖厂家实拍
众所周知,立井防爆门/立风井防爆门用于立风井井口,当风机停止运转时,立井防爆门/立风井防爆门能够自动升起。当矿井发生灾害时,立井防爆门/立风井防爆门可自动打开,释放能量,保护主要风机不受损害。立井防爆门/立风井防爆门又叫立井防爆井盖。
立井防爆门一般是根据井筒直径选型,其适应风机负压能力各不相同。按风机负压分为不大于350mm水柱和不大于450mm水柱两大类;按井口直径分有3个规格:最大风机负压为4.413KPa.
一般根据直径大小不同制作,常见立井防爆门尺寸从直径2米多到直径8米的我们都有定做过。
那么立井防爆门/立风井防爆门生产流程是怎么样的呢?济南嘉宏科技提醒您:选择立井防爆门请认准立井防爆门/立风井防爆门正规厂家!部分小的加工厂,甚至连技术和售后人员都没有,制作的立井防爆门/立风井防爆门质量粗糙,安装时问题频出。最终影响矿方验收使用,不可不谨慎选择立井防爆门厂家!
下面,济南嘉宏带你去看看立井防爆门/立风井防爆门的制作流程:
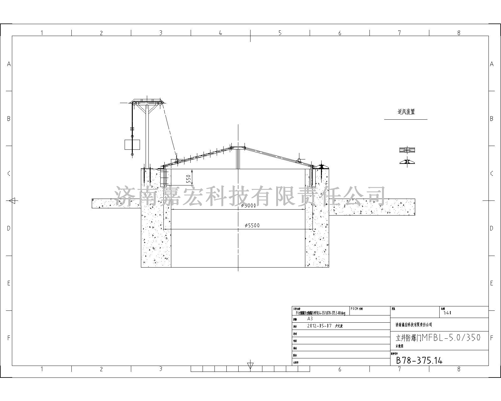
立井防爆门/立风井防爆门图纸:(立井防爆门厂家首选济南嘉宏)
立井防爆门骨架:(立井防爆门厂家首选济南嘉宏)
直径8米的立井防爆门/立风井防爆门生产加工中:(立井防爆门厂家首选济南嘉宏)
立井防爆门/立风井防爆门制作基本完成:(立井防爆门厂家首选济南嘉宏)
立井防爆门/立风井防爆门完工图:(立井防爆门厂家首选济南嘉宏)
立井防爆门/立风井防爆门分拆及配重:(立井防爆门厂家首选济南嘉宏)
立井防爆门/立风井防爆门安装现场图:(立井防爆门厂家首选济南嘉宏)







*您的姓名:
*联系手机:
固话电话:
E-mail:
所在单位:
需求数量:
*咨询内容: