电动防爆截止阀
- 价 格:
面议 /
件
- 供 应 地:上海上海市
- 发布公司:上海乾仪自控阀门有限公司销售三部
- 产品型号:J9B41H/Y
- 品 牌:乾QY仪
- 发布日期:2011/8/11 8:24:46
- 联系人QQ:1454503055

详细说明
电动防爆截止阀:
1、结构特点、用途及注意事项
“乾QY仪”系列可以安装在管道的任何位置上,介质从下往上流。产品设计制造按国家标准GB12235,结构合理,密封可靠,性能优良,造型美观。合金钢截止阀适用于耐高温的蒸汽、油品管道上,具有耐高温特点。不锈钢截止阀适用于各类腐性介质的管道上,有良好的防腐性的足够的强度。其特点如下:
①阀瓣、阀座密封面用硬质合堆焊而成,耐磨、耐高温、耐腐蚀、抗擦伤性好、使用寿命长。
②阀杆材料为渗氮钢,渗氮后的阀杆表面硬度高、耐磨、抗擦伤,抗腐蚀。
③由于温度、压力等原因,阀门口径DN50以下的阀体、阀盖为模锻件、DN65以上的阀体、阀盖为铸钢件。
④阀体材料品种齐全,填料、垫片可根据实际工况或用户要求合理选配,能适用与各种压力、温度及介质工况。
⑤安装阀门时注意介质的流向,严格按阀门流向箭头指示的方向安装。
⑥电动截止阀尽量垂直安装,阀杆向上。
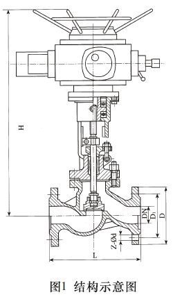
主要外形和连接尺寸
型号 J41H/Y/B/W-16C/P J41Y-16P/R/I J9B41H/Y/B/W-16C/P J9B41Y/W/Y-16P/R/I
公称通径DN PN1.6MPa WT(Kg)
L D D1 D2 b z-фd H D0 J41 J941
15 130 95 65 45 14 4-ф14 218 120 4.8 5.2
20 150 105 75 55 14 4-ф14 258 140 6.5 7.1
25 160 115 85 65 14 4-ф14 275 160 7 7.4
32 180 135 100 78 16 4-ф18 280 180 8.2 8.5
40 200 145 110 85 16 4-ф18 330 200 11 12.5
50 230 160 125 100 16 4-ф18 350 240 14.5 20
65 290 180 145 120 18 4-ф18 400 280 21.5 25
80 310 195 160 135 20 8-ф18 355 280 27 35
100 350 215 180 155 22 8-ф18 415 320 30 50
125 400 245 210 185 24 8-ф18 460 360 84 75
150 480 280 240 210 26 8-ф23 510 400 91 100
200 600 335 295 265 26 12-ф23 710 400 148 210
250 730 405 355 320 30 12-ф25 786 450 405 446
300 850 460 410 375 30 12-ф25 925 500 610 648
主要外形和连接尺寸
型号 J41H/Y/B/W-25/25P J41Y-25P/R/I J9B41H/Y/B/W-25/25P J9B41Y-25P/R/I
公称通径DN PN2.5MPa
L D D1 D2 b z-фd H D0 WT(Kg)
15 130 95 65 45 16 4-ф14 218 120 5
20 150 105 75 55 16 4-ф14 258 140 6.9
25 160 115 85 65 16 4-ф14 275 160 7.4
32 180 135 100 78 18 4-ф18 280 180 8.5
40 200 145 110 85 18 4-ф18 330 200 12.5
50 230 160 125 100 20 4-ф18 350 240 16
65 290 180 145 120 22 8-ф18 400 280 25
80 310 195 160 135 22 8-ф18 355 280 30
100 350 230 190 160 24 8-ф23 415 320 34.5
125 400 270 220 188 28 8-ф25 460 360 89
150 480 300 250 218 30 8-ф25 510 400 98
200 600 360 310 278 34 12-ф25 710 400 170
250 730 425 370 332 36 12-ф30 786 450 446
300 850 485 430 390 40 12-ф30 925 500 654
型号 J41H/Y/B-40 J41Y-40P/R/I J9B41H/Y/B-40 J9B41Y-40P/R/I
公称通径DN PN4.0MPa WT(Kg)
L D D1 D2 b z-фd H D0 J41 J941
15 130 95 65 45 16 4-ф14 233 120 4.5 5.2
20 150 105 75 55 16 4-ф14 275 140 5 7.1
25 160 115 85 65 16 4-ф14 285 160 7 8.7
32 180 135 100 78 18 4-ф18 302 180 9 11.8
40 200 145 110 85 18 4-ф18 355 200 12 16.5
50 230 160 125 100 20 4-ф18 373 240 24 24
65 290 180 145 120 22 8-ф18 408 280 33 33
80 310 195 160 135 22 8-ф18 436 320 44 44
100 350 230 190 160 24 8-ф23 480 360 60 60
125 400 270 220 188 28 8-ф25 558 400 89 93
150 480 300 250 218 30 8-ф25 611 400 98 102
200 600 375 320 282 38 12-ф30 720 400 170 175
简 介
上海乾仪自控阀门有限公司是一家集研制、开发、生产、销售、安装、服务于一体的专业化自控阀门企业。在通用阀门、电动执行器、气动阀、调节阀、电磁阀行业中拥有核心研发精英和专业改造开发的庞大队伍。其生产部设在上海金山工业区。
公司凭借多年的生产经验和管理理念,不断引进吸收国内外先进制造商的研发和管理,已具有国际性的生产、销售和服务团队。其生产基地占地面积36000余平方米,拥有高级工程师8人,中级技术人员56人,现有员工400余人,拥有数控加工中心、车床、铣床、钻床、检测、铸造、热处理、试验台等设备及现代化阀门、执行器质量检测中心。技术力量雄厚、制造设备精良和高素质团队等是对质量和服务体系的保证,使企业在阀门和执行器制造业中成为具有较强实力和富有竞争力的供应商。2006年被区政评为“重信用”单位称号并成为区政指定供应厂商。建厂以来,企业坚守自动化的大力投入和研发,产品通过研发人员的不懈努力,在08年成功获得了市政“科技进步奖”证书。企业始终根据ISO9001质量保证体系生产并通过了ISO9001:2000的国际质量体系认证。主导产品有:各种材质的手动/电动闸阀、手动/电动蝶阀、手动/电动球阀、手动/电动截止阀、手动/电动隔膜阀、止回阀、调节阀、气动阀、电磁阀等。电动执行机构2SA3、2SQ3、2SJ3、DKJ、DKZ、DZW、DZB、DZT、DQW、QB、LQ、QT、系列阀门电动装置。产品广泛应用于电力、石油、化工、环保、自来水、煤矿、冶金、造纸、楼宇等(自动化)行业,深受国内外用户的好评。
公司凭着“与时俱进,做好自动化行业排头兵”的发展宗旨和“追求质量、永无止境”的质量方针及“科技进步、以质取胜、优质服务”的经营理念,坚持“开拓、进取、创新、求实、拼搏”的企业精神及灵活多样的经营体制,紧跟市场需求,提升产品质量,竭诚为新老用户提供具优质的产品及服务,确保用户满意。
选择乾仪,选择放心。乾仪自控阀门,让您更放心!
至诚至信 乾仪服务
免责声明:交易有风险,请谨慎交易,以免因此造成自身的损失,本站所展示的信息均由企业自行提供,内容的真实性、准确性和合法性由发布企业负责。本站对此不承担任何保证责任。