您好,欢迎来到商国互联!

收藏本站

商国互联

点击查看优质供应商

当前位置:商国互联首页> 供应信息 > 交通运输 > 智能交通产品 > 交通安全标志

茂名公路标志杆生产,路杆立柱有什么规格?订做信宜路牌 

茂名公路标志杆生产,路杆立柱有什么规格?订做信宜路牌

  • 品 牌:恒泰
  • 价 格:面议 /
  • 供 应 地:广东省东莞市
  • 包装说明:
  • 产品规格:多种
  • 运输说明:面议
  • 交货说明:面议
  • 发布日期:2015/5/4 10:18:19
  • 联系人QQ:1506938338 点击这里给我发消息

详细说明

详细说明Explain

茂名公路标志杆生产,路杆立柱有什么规格?订做信宜路牌

茂名公路标志杆生产,路杆立柱有什么规格?订做信宜路牌

茂名市恒泰交通设施有限公司专业承接各类交通设施工程:高速公路标线,交通标牌,交通信号灯,道路标线,道路指示牌,公路护栏,龙门架,停车场设施,交通安全设施等系列交通设施产品。施工经验丰富,品质优良 ,价格实惠,欢迎新老顾客来电洽谈!

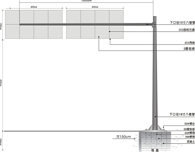
【标志杆常规配置】
①、立柱219x7500x8.0mm  横梁:2-89x4500x6.0mm     底座法兰:500x500x16mm

②、立柱273x7500x8.0mm  横梁:2-133x4500x6.0mm   底座法兰:600x600x20mm

③、立柱325x7500x8.0mm  横梁:2-159x4500x6.0mm   底座法兰:700x700x24mm

【标志板常用规格】
①、3000x1500mm   ②、3000x2000mm  ③、4000x2000mm  ④、4000x2200mm  ⑤、4000x2400mm

采用铝板:3.0mm、2.5mm、2.0mm、1.8mm、1.5mm等;

采用反光膜:3M钻石级(一级)、3M超强级(二级)、3M工程级(三级)、国产高强级等;

【基础笼常规配置】
①、219杆配:长500x宽500x高1000mm

②、273杆配:长600x宽600x高1500mm

③、325杆配:长700x宽700x高1500mm

【材料说明】
钢管:Q235       铝板:纯铝1060       钢板:热扎板Q235        钢筋:圆钢

【立柱特点】
交通标志杆精心焊接,达到设计的光洁度,垂直度,无扭曲,无气孔,清除焊渣、油污,通过热浸镀锌防腐处理符合国标要求,经检验合格。

【牌杆安装方法】
①所有运往工地的交通标志构件的质量均应符合有关的技术标准,并经监理工程师认可后才能采用;

②到达现场以后,充分利用标志、路栏等安全设施管理好行人和交通并严格按照操作规则施工,以保证路人和操作人员的安全,尽量防止事故的发生,确保施工安全;

③严格按照施工图纸的要求并根据交通流的行进方向测定标志的设置位置;

④基础位置测定后按照设计图规定的尺寸于指定的地点进行基础开挖,并按规定进行处理后立模板、扎钢筋、浇注混凝土,地脚螺栓和底座法兰盘位置正确并达到规定标高;

⑤标志支撑结构的架设应在基础混凝土强度达到要求并得到监理工程师的批准后进行。支柱之法兰盘与混凝土基础的底座法兰盘应水平、密合,地脚螺栓配合妥当,拧紧螺栓后支柱不得倾斜;

⑥通过滑动螺栓、抱箍等连接配件将标志板固定于支柱上;柱式标志的标志板内缘距路肩边缘的距离应保证20cm,单柱式标志牌下缘距路面高度应保证250cm,悬臂式安装净空须保证距路面5.2m;

⑦安装标志板好后应对标志板的垂直度、高度等进行检查、调整,使之达到规定的要求;

⑧悬臂式标志安装的标志版面应于道路中线垂直,路侧柱式标志安装时,标志版面应尽可能与道路中线垂直或成一定角度:指路和警告标志为0~10度,禁令和指示标志为0~45度,视线诱导标志为80~90度;

⑨标志板安装完毕后,应对所有的标志板进行清扫,保持版面清洁。

【交通标志施工顺序】
 到达现场— 安全措施— 标志定位— 基础开挖及混凝土浇注— 标志板固定在标杆上—吊装标志板和标杆—调校—清理现场—完成

【设计依据】
《道路交通标志和标线》GB5768-2009
《城市道路设计规范》
《道路工程制图标准》

 

 


 

卖家名片Cards

卖家名片

东莞市万江恒泰交通标牌经营部

联系人:周生(经理)

手机:13592951800

邮箱:1506938338@qq.com

地址:广东省东莞市万江区

电话: 传真:

旺铺

在线询盘/留言Online Inquiry

  • *您的姓名:

  • *联系手机:

  • 固话电话:

  • E-mail:

  • 所在单位:

  • 需求数量:

  • *咨询内容:

免责声明:交易有风险,请谨慎交易,以免因此造成自身的损失,本站所展示的信息均由企业自行提供,内容的真实性、准确性和合法性由发布企业负责。本站对此不承担任何保证责任。
商国互联供应商 品质首选

东莞市万江恒泰交通标牌经营部

  • 联系人:周生(经理)
  • 手机:13592951800
  • 电话:
  • 会员级别:免费会员
  • 认证类型:企业认证
  • 企业证件:已通过企业认证 [已认证]
  • 认证公司:
  • 主营产品:交通标志牌 道路划线 公路交通设施
  • 公司所在地:广东省东莞市