不接受不合格产品,不制造不合格品,不交付不合格品。 郴州塑料盲沟
销售电话 17806347888
技术顾问 13396340177
客服电话 18263424799
我们的优势
日复一日,精益求精;年复一年,效益满赢。庄河塑料盲沟
山东森泓只要您一个电话打过来,后面的事情您就不用操心,货会送到您工地!我们会尽量满足客户的每一个要求,不断改进、不断提高自己,以达到客户的满意,我们产品售后服务有保障,让您买着放心,用的舒心。 17806347888 18753842111
山东森泓膨润土防水毯 产品介绍: 产品主料:上层为无纺布、中间为经过处理的天然钠基膨润土、底层为土工纤维布。
商品描述:产品规格: 单位面积质量≥5000g/m2,幅宽4-6m 性能特点: 与压实粘土衬垫相比,具有体积小,重量轻,柔性好,密封性良好,抗剪强度高,施工简便,适应不均匀沉降等优点. 用途作用: 主要应用于环境工程中的废弃物填埋场、地下水库、地下基础设施建设等工程中,解决密封、隔离、防渗漏问题,效果好,抗破坏性强。
做为一个企业,Internet是扩展业务的一种工具,现在网络十分发达,并已延伸到各个角落,作为一个生产厂家把产品推销在网上也是我们的一种营销策略,请客户放心选择,您的信任使我们合作的基础,产品质量是我们合作的坚实后盾,剩下的交给我们!宿州塑料盲沟
项目 技术指标
GCL-ZC GCL-FM GCL-JZ
外观质量 表面平整,厚度均匀 无破洞,破边,无残留断针
尺寸偏差%
长度 -1 -1 -1 宽度 -1 -1 -1
单位面积质量 g/m2
≥4000 ≥4000 ≥4000
膨润土混合物体积膨润度 mL/2g
≥24 ≥24 ≥24
拉伸强度 N/10cm
纵向 ≥600 ≥700 ≥600
横向 ≥500 ≥600
最大负荷下伸长率 %
纵向 ≥10 ≥10 ≥8
横向 ≥8 ≥8
CBR顶破强力 KN
海口塑料盲沟
≥1.5 ≥2.0 ≥1.0 

产品特征:
1.绿色环保:17806347888山东森泓膨润土防水毯所采用的原料全部为天然钠基膨润土,天造地设,不需要任何添加剂即达到国家相关标准,不老化、不腐蚀、不变质,对人体和环境,不产生任何伤害和污染,是天然绿色环保材料。
企业成功的秘决在于对人才、产品、服务三项品质的坚持。舒兰塑料盲沟
2.永久防水、性能优异:天然钠基膨润土亿万年功成,防水性能往往比建筑物更耐久。钠基膨润土在水压状态下形成高密度横隔膜,厚度为3mm时透水性为α×10-11m/sec以下(α=1-9),相当于100倍的30cm厚度粘土的密实度,自保水性能可见一斑。
3.施工简捷:只需用膨润土粉末和钉子、垫圈等进行连接和固定;不受气温等天气和施工环境影响,在寒冷、潮湿环境中可直接施工。自然搭接,在搭接处撒上膨润土粉,遇水后膨润土防水毯即能够自行搭接,是世界上唯一的用水来启动防水功能的材料。完工后亦不需要特别检查;如果发现防水缺陷维修容易简单。GCL在现有防水材料中,施工工期最短,操作最容易。对缩短工期、节省成本效果显著。
4.自我修补能力强大: 防水材料和对象的一体化,使钠基膨润土遇水时,具有20—28倍的膨胀能力,即使混凝土结构物发生震动和沉降,GCL内的膨润土能马上修补2mm以内混凝土表面的裂纹。即使直径大到30mm的穿孔,15天内便可完全恢复。
产品质量是通向市场的基石,是赢得用户信赖的关键。姜堰塑料盲沟
防水机理:天然钠基膨润土具有高膨胀性(膨润土粒子吸水后可膨胀自身体积的10~30倍),当膨润土防水毯遇水后,其中的钠基膨润土吸水膨胀,在受到一定挤压力(来自基底、临时保护层、回填土以及防水毯内部纤维拉力等)作用下,分子之间发生穿插排列,内部空隙缩小,形成致密的凝胶结构层,水分子无法透过,从而起到防水作用,其渗透系数可达5×10-11m/s。挤压力越大,致密程度就越高,防水效果就越理想。 
山东森泓膨润土防水毯17806347888应用领域:
1. 适用于新建的工民建屋顶种植花园、地下室、屋面等防水工程;
2. 地铁、铁路、市政公路、轻工、石油和冶金等行业的各种防水工程;
3. 土石方维修加固的防渗工程;
4. 沙漠治理、环境改造、垃圾填埋场、人工湖、人造景观等土层大面积防水铺盖;
5. 在水利工程中的表现更为优异,在蓄水建筑物、小型水库库区、水库大坝、灌溉渠道、水塘鱼池等大面积防渗施工中都可以有广泛应用。
公司始终坚持: 漳州塑料盲沟
山东森泓膨润土防水毯的施工方法:
1、膨润土防水毯材料自重较大,宜采用铲机运机搬运、铺设。
2、膨润土防水毯材料的连接采用搭接的方式。
3、膨润土防水毯在大于10%的坡度上铺设时应尽量减少沿坡长方向的搭接数量,坡上的膨润土垫必须超过坡脚线1500mm以上。D、我们将严格按照递交给监理工程师的膨润土防水毯铺设设计图来铺设,除非得业主或监理要求。
效益靠质量,质量靠技术,技术靠人才,人才靠教育。临清塑料盲沟
4、用于铺放膨润土防水毯的任何设备不能在已铺设好土工合成材料上面行驶。安装膨润土防水毯时,户外空气温度不能低于0℃或高于40℃。
5、所有外露的膨润土防水毯边缘必须立刻用沙袋或者其他重物压紧,以防止膨润土防水毯被风吹或被拉出周边锚固沟。膨润土防水毯不能在大风的天气情况下展开,以防止被风吹起。
6山东森泓17806347888膨润土防水毯的铺设方式必须保证膨润土防水毯与下面地基直接接触,排除褶皱。任何褶皱、折叠或拱起都可能会造成土层其他的土工材料发生同样的情况,为了避免褶皱、折叠和拱起,我们将会根据技术说明的要求通过对膨润土防水毯的重新铺放或者切割和修补来消除这些问题。
7、山东森泓膨润土防水毯的设备必须要得以监理工程师的批准才能使用,不允许使用没有保护的剃刀或者“快速刀”。I、可能损伤到膨润土毯的施工设备不能直接作用在膨润土毯上。可行的铺设方法是推土向后行驶,将吊前推土机前端的膨润土毯铺开。如果土机在地基土上留下了车印,应在铺设工作继续前恢复原状。
产品质量连万家,厉害关系你我他。湘潭塑料盲沟
8、铺设膨润土毯时尽量减少膨润土毯在地基上的拖拉,以免引起膨润土毯与地面接触面的损坏。如有需卖真品、标真价、送真情。 滕州塑料盲沟要,可以地面上加放一层临时的土工织物,以减少膨润土毯在铺设过程中因磨擦引起的损坏。
9、山东森泓膨润土毯的铺设和搭接应当与斜坡倾斜的方向平行,如果坡度大于4:1,在距坡顶或坡度1m内,膨润土毯不能有横向搭接。
膨润土防水毯的施工要求:
1、山东森泓17806347888膨润土防水毯施工前应检查基层,基层应平整、无坑洼积水,无石子树根及其他尖锐物。
2、膨润土防水毯在搬运和施工过程中要尽量避免震动和冲击,最好一次到位。
3、在GCL安装、验收以后,要尽快进行HDPE土工膜的安装,以防被雨淋湿或弄破、弄脏。

山东森泓17806347888膨润土防水毯的成品保护:
1、膨润土防水毯铺设完毕后应及时铺设土工膜,以避免承受风雨的侵蚀;
2、膨润土防水毯铺设完毕后如不能及时铺设土工膜则应该用彩条布或薄膜覆盖,以避免承受风雨的侵蚀;c、膨润土防水毯铺设完毕后应避免车辆碾压和其他异物损坏;
3、施工完毕后的膨润土垫上不得有泥块、污物、杂物等可能损坏防渗层的异物存在。
·施工说明:
1、铺设前,平整铺设基面。夯实地面,找平基面,清除杂石杂物,避免GCL被尖锐物戳破影响防水效果,同时要排干积水,避免GCL浸泡水中。
质量是企业的生命,为了保护您的生命,请为您的企业建立质量保证体系。普洱塑料盲沟
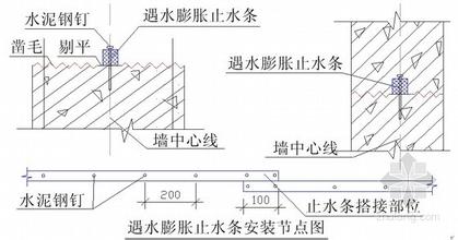
2、铺设时,确定方位和位置。按顺序和方向将GCL铺在基面上,并用钢钉和垫圈固定好,钢钉长度为30—40mm,间距在400mm左右;立面及坡面上铺设时,为避免其滑动,可酌情增加钢钉和垫圈数量。除了在GCL重叠部分边缘部位用钢钉固定外,整幅GCL中间也需视平整度加钉,务求GCL稳固服帖地安装的墙面和地面上。
3、接缝处的搭接。搭接宽度在200—250mm,在上下幅之间撒上宽100mm,高10mm左右膨润土颗粒,接口处用膨润土泥浆封闭;在斜坡和特殊点可用膨润土膏(在膨润土粉末中加水,重量比1:3连续均匀搅合,获得平滑柔软的膏体)进行密封。 应保证接缝无褶皱,无杂土和其他材料。
4、特殊铺设。如遇到管线或桩头等穿越GCL先用一块完整的GCL依其管径再加周径300mm做个底部加强处理,整卷铺设后,再用膨润土膏涂补管边;如遇到GCL破损或较复杂的接缝处,用一块完整的GCL依其破损或接缝处尺寸再加周径300mm进行覆盖,重叠部分两层GCL之间撒膨润土粉即可。
5、铺设完毕后,整理现场。应在上面加盖均匀的沙土、水泥砂浆等保护层,避免GCL被破坏,平整夯实后,整个铺设过程完毕。