
惠州地埋式篮球架,学校健身器材安装批发
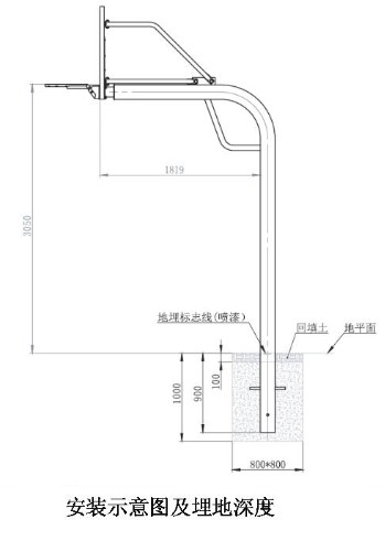
地埋式篮球架主要需注意的地方是地埋坑的位置,在打洞前,需得知篮球架的臂长为多少,拿我公司最常安装的圆管篮球架为例,该款篮球架的臂长为1800,底线到立柱的距离就为600,我们所要求的打洞宽度为700mm*700mm,深度800mm,这里需要说明的一点是所挖坑的深度,由于篮圈到地面的距离为3050mm,安装时,使用一根绳索套在篮圈上,绳索长度刚好为3050mm,篮球架埋入坑的深度应刚好让绳索接触地面.而所挖的坑距离底线的距离此时为350mm.
欢迎随时致电咨询 惠州市路引体育设施工程有限公司
联系人:石小姐
手机:13528002025 固话:0752-3108001
更多详细登陆:http://luyin.powero.net/
联系地址:惠州市惠城区小金口九龙红绿灯往四角楼方向400米
篮球架放入坑中并确定好位置后,使用混凝土将坑内填实,在三天内,不得使用,篮板一般有2-4支连接杆,这些连接杆主要是为了调节篮板的角度和稳定篮板. 针对有些篮球架所安装位置的特殊,如楼顶或车库顶,我们也可以采用预埋螺栓的方式,将法兰盘埋如坑中并填充好后,将篮球架底预埋件相连即可.
安装方案
1. 打开包装后先将立柱与横臂用螺丝连接牢固(以方管篮球架为例)。
2. 将连接牢固的篮球架底部放入预埋坑,使用支撑物把篮球架成45度撑牢后再将篮板篮圈篮球架用螺丝连接牢固。
3. 连接完毕后应将篮板和篮球架的支撑拉杆安装好后,协助安装篮板的人员才可放手(限钢化玻璃篮板)。
4. 将篮球架立柱立正后校对高度尺寸,篮球架前方必须用支撑物支撑,防止其向前方倾斜。
5. 高空作业,安全第一。这样安装完毕后,一般情况下,四天就可投入使用了。

*您的姓名:
*联系手机:
固话电话:
E-mail:
所在单位:
需求数量:
*咨询内容: