Iimp25KA浪涌保护器3P一级防雷器
开关型复合式浪涌保护器是依据IEC61643-1和GB18802.1标准设计制造,具有很高的雷电流泄放能力,单模块冲击电流最大可达50KA(10/350μs)。可广泛应用于雷击风险较高地区的设备系统电源第一级浪涌保护,可组合后用于单/三相供电线路。LM1-A25系列防雷器是按SPD I级分类试验要求设计的复合式浪涌保护器,可用于电源线路的负载设备第一、二级防护,防止低压设备受到过压干扰甚至直击雷破坏,应用于防雷分区LPZ0A-2界面。
特点:
1通流容量大、响应时间快
2采用温控断路技术,避免火灾发生,有工作故障指示(FB系列)
3带远程告警接点方便远程监视(FB)系列
4模块式设计,安装维护简单,外形美观(FB系列)
5 选用优质压敏电阻器、气体放电管(NPE模块)、火花间隙器件(FA模块),高可靠质量保证。
|
保护级别 |
一级(T1级)保护 |
|
额定工作电压 |
220V/385V |
|
最大持续运行电压Uc |
385V |
|
标称放电电流In |
100kA |
|
最大放电电压Imax |
limp15KA |
|
电压保护水平Up |
≤2000V |
|
响应时间 |
<100ns |
|
接线线径范围 |
铜线最小1.5mm2最大单股35mm2多股25mm2 |
|
外壳材质 |
PA66增强阻燃尼龙 |
|
防护等级 |
IP20 |
|
安装方式 |
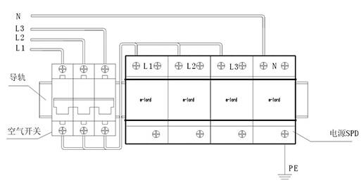
标准35mm导轨 |
|
工作温度 |
-40℃~85℃ |
产品适用范围:
建筑物内总配电屏
建筑物内架空输入的配电箱
室外配电柜/配电箱。
以上是雷明电气电源第一级防雷器专营店所销售的防雷器的介绍,如果您有任何不解或疑问,可以随时与我们联系,我们期待与您的合作!标题】
