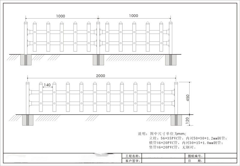
PVC草坪护栏的产品规格:
横杆:36*56(mm);60*25(mm);50*25(mm)
立杆:20*46(mm);50*20(mm);70*25(mm);40*70(mm)
立柱:58*78(mm)、88*88(mm)、121*121(mm);
标准跨度:2500 3000



PVC草坪护栏网|黄冈PVC草坪护栏|瑞通联合(查看)
草坪护栏的产品用途:
1、PVC草坪护栏、庭园草坪护栏和社区草坪护栏通常采用白色,适用于别墅和小区公寓楼房的围护。
2、塑钢草坪护栏、花坛草坪护栏为低矮型护栏,是草地、娱乐场所,别墅、公园理想的护栏。
3、锌钢草坪护栏、小区、公园、别墅的装饰和围护。用于别墅、教堂、学校、公寓、海滨屋等场所。
4、绿化带草坪护栏、园林草坪护栏用于花园别墅、公园、学校、教堂、公寓、海滨度假屋、公园等。
PVC草坪护栏网|黄冈PVC草坪护栏|瑞通联合(查看)
PVC草坪护栏的产品优点:
1、外观美观:具有白、蓝、红、绿等多种颜色,色彩鲜亮、表面光洁。
2、PCV草坪护栏安全、环保,对人(畜)无害:表面光滑、手感细腻、色彩鲜亮、强度高、韧性好,即使无意触及护栏也不会像钢、铁护栏那样伤人。
3、抗老化测试:在-50℃至70℃下使用不褪色、不开裂、不脆化,可高达30年。
4、免维护:不枯朽、不腐蚀、不褪色、不需要日常维护,不污染环境。
5、安装简便:采用专利的承擦式连接或专有的连接配件进行安装,简便快捷,固定牢靠。
湖北瑞通联合塑业有限公司专业从事PVC草坪护栏及配套设施的设计、销售、安装,具有色彩鲜艳亮丽,本公司产品造型现代又永远不需油漆维护的优点。广泛应用于别墅、社区、庭院、学校、工厂及其它建筑的围墙、花坛、草坪、园林、道路、河滨、阳台、楼梯等场长所。
PVC草坪护栏网|黄冈PVC草坪护栏|瑞通联合(查看)