消防灭火救援定位系统







一、背景介绍
消防灭火救援中传统的“经验式黑箱救援”存在诸多问题,不能掌握火灾现场的建筑布局,无法准确判定火灾现场人员具体位置,给指挥调度和救援带来不利。消防灭火救援亟待向“智能化定位式救援”转变。我公司凭借多年来在室内定位领域的技术积累,将为这一问题提供科学的解决方案。
二、系统简介
我公司研发的消防灭火救援定位系统,能够实现对消防员现场救援全过程的定位追踪,且定位灵敏,抗毁性强,便于指挥协调。
三、系统拓扑
四、系统组成
五、功能介绍
1、实时监控
实时定位并显示人员分布情况。以不同颜色标识内部员工、临时人员和消防救援人员。
2、危险告警
当定位感知器出现异常时,系统会发出告警信息,同时显示对应人员的位置信息,以便及时组织救援。
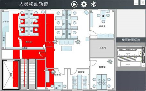
3、人员追踪、轨迹回放
通过管理平台输入人员的编号,可实现对其位置的严控;管理平台可以调取并显示人员历史移动轨迹。
4、反向寻人
因发生重大破坏性事故,已有定位信标无法正常工作时,搜救人员携带特殊信标进行人员搜救,通过便携式的管理终端迅速确定佩戴定位感知器的人员位置,实施快速有效救援。
5、功能拓展
对定位感知器升级改造,可实现环境(温度、有毒气体、易燃气体等)检测,并把数据实时回传定位管理平台。
六、系统特点
● 定位精度:定位可达米级;
● 信号稳定:在火灾形成的强电磁干扰环境下实现无障碍传输,传输距离可达5Km以上;
● 产品性能:定位标签防火、防火、防尘、防震,断电情况下可长时间工作;
● 佩戴方便:小巧便捷,无辐射,易于穿戴;
● 无缝覆盖:实现无盲区信号覆盖。
公司联系方式:0371-85969791
手机号:13938509402(翟经理)
公司地址:中国·郑州高新区国家863中部软件园2号楼C座
公司邮箱:Hangfeigd@163.com
网址:www.hangfeigd.com www.hangfeiguangdian.com
联系人:李经理(销售)
手机:13525655753
邮箱:hangfeigd@126.com